BNDE Headquarters - Proposal (2025)

with Senga Architects

The Banque Nationale pour le Développement Economique (BNDE) is a bank founded and operating in the nation of Senegal on the Western coast of Africa with a primary focus on providing capital for the growth and development of various industries within the country. In 2025, I led a small team on a 3-week study to create a proposal for a new mid-rise tower that would serve as the bank’s new headquarters and as a new local branch in the coastal city of Dakar.

The result seeks to merge a myriad of needs and influences. How to balance a rich cultural and architectural local history with the desire for a forward-looking headquarters? Or to marry the scales of a small local branch with an impressive tower? The structure became a grid around which program and skin could be woven to a need. Borrowing from Sullivan, a tripartite vertical organization allowed form to rise to the varied functions. The client’s program suggested floor plates of different sizes at each floor, allowing for a more dynamic geometry with integrated balconies and overhangs that could host murals by local artists. And local materials and plantings help to create a peaceful environment that is tied to its surroundings.

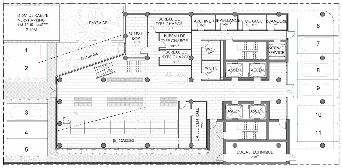
GROUND FLOOR

MEZZANINE

Bank branch plans with 2-story lobby. The 2nd floor mezzanine creates shorter, intimate spaces with more privacy for banking activities. The central circulation connects both the front and rear parking to the bank and elevators.

Bank branch interior renderings.

Previous
Previous

Memorial Competition (2018)